EMT museum. madrid

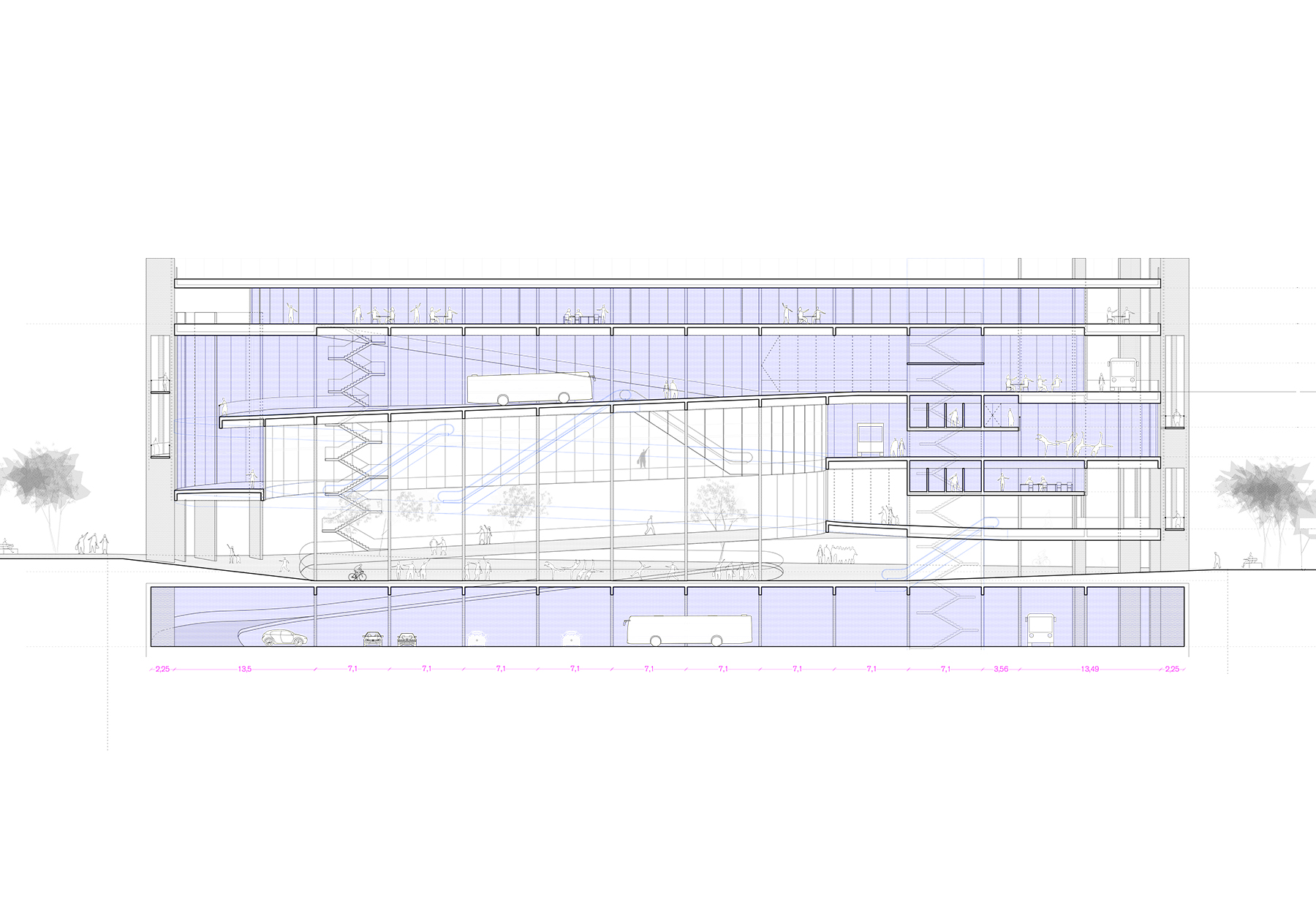
saying 'this is not a ramp', echoing magritte, challenges what we think we see. it invites us to question how we perceive the world. regulations explain that a surface with a 4% slope is, for practical purposes, the same as being flat, meaning it is not considered a ramp. many streets in madrid are like this, gently sloping. walking uphill takes a bit more effort than going down, yet these streets are so familiar that we barely notice them. this museum works in a similar way, as if it were an extension of the street itself, where buses, bikes, and families of all kinds move around. it becomes difficult to tell what is part of the exhibition and what is not. the buses appear as though they were in real service, moving up and down the street, much like the well known story about wrights guggenheim.

the museum stands out not because it tries to be unique, but because it is clear, strong, and easy to read. its height and structure resonate with the neighboring residential building, defining the street with precision. at the same time, it is porous and very open to movement and sight. by unfolding public space vertically, two conditions can coexist: an outdoor entrance atrium and a large multifunctional interior void, ready to host activities ranging from sports to performances, celebrations, or installations. there is also a direct path leading to the roof, a raised plaza that satisfies an innate desire to climb and see farther, and perhaps enjoy a drink while doing so. inside, any moment can capture and freeze the constant motion of the place, recalling the atmosphere of memorable parking structures, with their uninterrupted flow of views, actions, movements, and relationships with others, with past moments, and with those still to come. it becomes a sequence of events inhabiting a single infrastructure, always the same yet always different.

it is compelling to imagine virtual reality becoming so closely intertwined with the physical world that telling the two apart becomes difficult. this brings to mind the work of audiovisual artists cardiff miller. their audio and video walks guide visitors along a specific route while they listen to prerecorded stories and sounds, creating a dialogue between sound and space. this simultaneity blends the present moment with memory, showing how sound can awaken past experiences within a shared space time.

This website uses cookies. By continuing to use this website, you agree to the use of cookies. More info here.